IMMO REUNION Agence
Vendu

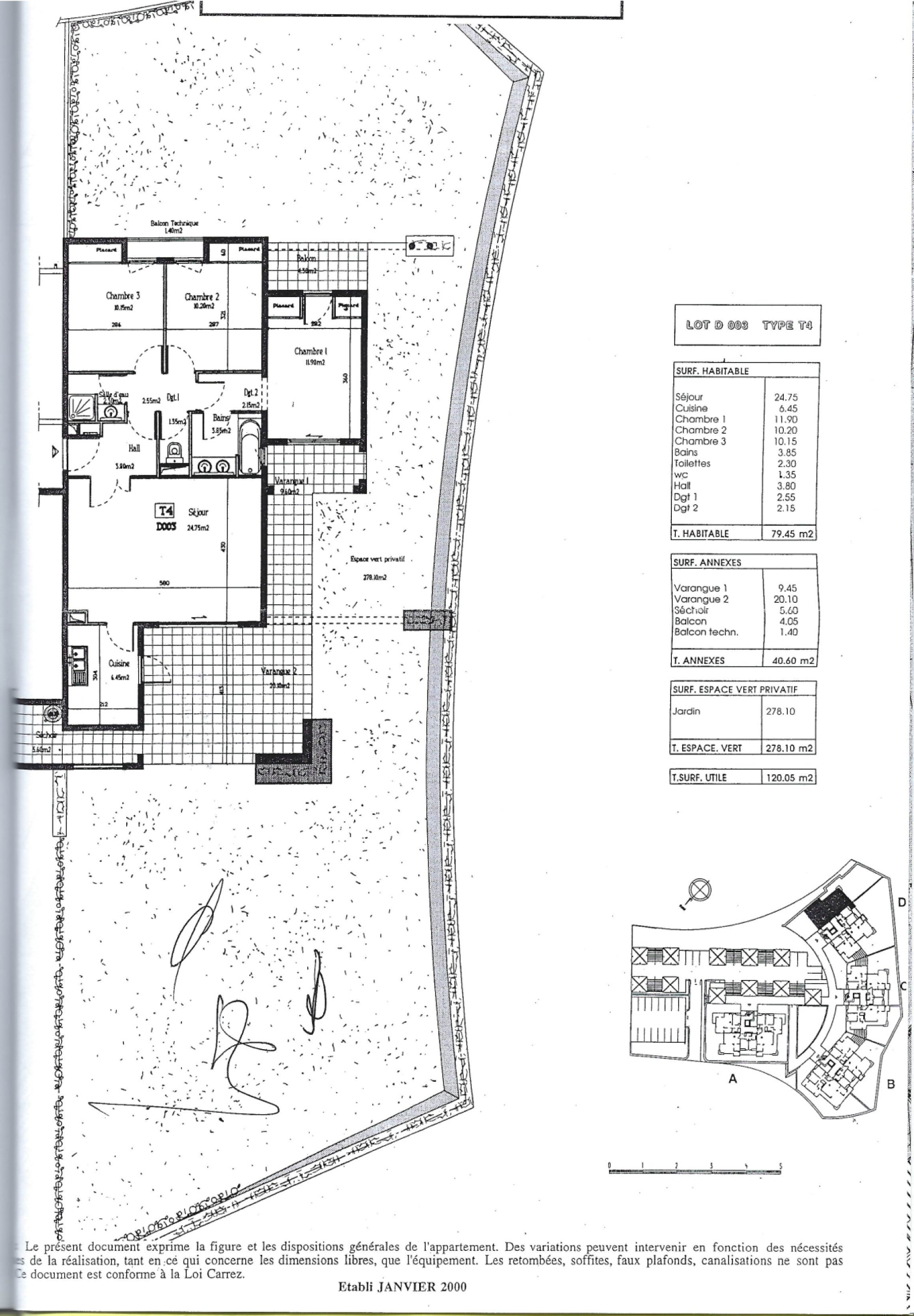
Appartement 4 pièce(s) 3 chambre(s) 80 m²

Saint Gilles Les Bains (97434)
418 080 € Référence V46

A propos de ce bien

A Mont Roquefeuil, dans une résidence des années 2000, entretenue et sécurisée avec piscine, à vendre appartement F4 en rez-de-jardin, d'une surface habitable de 80 m2 comprenant : un vestibule, un séjour climatisé, une cuisine, trois chambres climatisées avec placards dont une avec salle de bains, une salle d'eau, un WC et comprenant aussi des surfaces annexes telles qu' un séchoir, un balcon, une terrasse de 30 m² et un espace extérieur de 278 m².
Le bien est situé à proximité à pied de toutes les commodités (transports, scolaires, santé, commerces, services, plages...).
Autres informations:
- VENDU NON LOUE/LIBRE DE TOUTE OCCUPATION
- TF : 2915 €
- Charges de copropriété : 776 €/Trimestre
- Deux emplacements de stationnement sécurisés
- Copropriété de 93 lots dont 36 logements.
- Pas de procédure en cours.
Mentions obligatoires:
- L'île de la Réunion n'est pas concernée par le Diagnostic de Performance Energétique (DPE).
- L'île de la Réunion est située dans le périmètre d'un plan de prévention des risques: zone de sismicité. Les informations sur les risques auxquels ce bien est exposé sont disponibles sur le site : www.georisques.gouv.fr .
- Prix de vente du bien honoraires d'agence inclus de 4 % TTC à la charge du vendeur.
Rendez-vous sur notre site pour visionner d'autres photos et consultez le barème de nos honoraires !

Caractéristiques de ce bien

  • Surface 80 m²
  • carrez 79,45 m²
  • séjour 25 m²
  • 3 chambre(s)
  • 1 salle(s) de bain
  • 1 salle(s) d'eau
  • construit en 2000
  • cuisine séparée
  • exposition Sud
  • 2 étage(s)
  • balcon
  • terrasse
  • interphone
  • quartier MONT ROQUEFEUIL

Diagnostics énergétiques

Consommation énergétique
A B C D E F G
Emission de gaz à effet de serre
A B C D E F G
DPE vierge

Informations financières

Prix de vente 418 080 € Les honoraires d'agence seront intégralement à la charge du vendeur
Charges 259 €
Taxe foncière annuelle 2 915 €

Informations de copropriété

Copropriété Oui
Quote part annuelle des charges 3 105 €
Plan de sauvegarde Non
Statut du syndic Pas de procédure en cours

Autour du bien

  • Commerces et santé
  • Loisirs
  • Ecoles
  • Transports
  • Pratique

Calcul des mensualités

* Champs obligatoires